大阪メトロ御堂筋線1本で梅田、難波などへ繋がる
利便性と都市機能に富んだ「江坂」に住まう。
サンレムート・江坂2nd

株式会社アライヴ・ウエル

株式会社アライヴ・ウエル

大阪メトロ御堂筋線1本で梅田、難波などへ繋がる
利便性と都市機能に富んだ「江坂」に住まう。
サンレムート・江坂2nd

吹田市広芝町5番30
大阪メトロ御堂筋線「江坂駅」徒歩4分

こちらの物件お問い合わせ

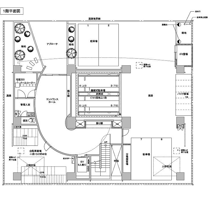
フロアプラン
Floor Plan

フロアプラン

Others